
Project: Housing project
Location: Athens – Metaxourgeio
Date: june 2009 – september 2009
Size: 450 m²
State: on drawing board
Client: undisclosed
In collaboration with: alex vandoros & kleopatra psarrou
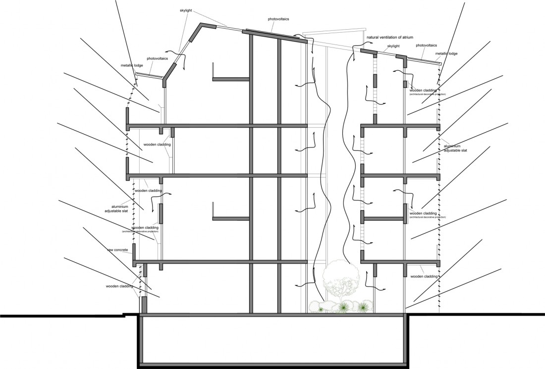
The area where the plot is placed is characterized as a residential neighborhood with pedestrian walks. The housing project is obliged to be in touch with the adjacent building sites (leaving 10cm seismic joint). The building touches the main street boundary and is detached much more than 4,55m form the back boundary in order to create a future flat and united main façade with the adjacent buildings and a future free green space at the back.
In order to create a financially viable building for the employer we used the total amount of Gross Building Area that is permitted at the specific plot, creating also two double height spaces (first floor – above the ground floor – and third floor – taking advantage of the 2meter legal rooftop) with inner mezzanine structures for the sleeping areas.
At the ground there are two apartments (one single and one double) for three students, at the first floor there are three double height apartments (all double) for six students, at the second there are two apartments (one double, one double with separate rooms) for four students and the third floor three double height apartments (one single and two double) for five students. Totally eighteen students are accommodated as the competition program asked for.
The concept is to create a sustainable building, giving all the inhabitants a high quality of living despite the tiny dimensions of the structure. It is obvious that the ‘shelter’ housing unit type is chosen in order to achieve the above amalgamation of self-sufficient units.